Příběh apartmánu!

Violík, nebo-li Labský štít, je vrchol o výšce 1472 m. n. m. nacházející se na česko-polské hranici na hřebenech Krkonoš. Cesta sem vede buď od Sněžných jam nebo z Labské louky okolo pramenu Labe.

Tajný tip
Tajný tip
Z české strany je to velmi jednoduchý výstup po hřebeni hor. Nebojte se ho zdolat i z polské strany, kde lze jít i po sjezdovce ze Sklarske Poreby na Szrenicu a potom na hřebeni po Cestě Česko-polského přátelství či pod ním.
Rokytná resort

Violík

Violík, nebo-li Labský štít, je vrchol o výšce 1472 m. n. m. nacházející se na česko-polské hranici na hřebenech Krkonoš. Cesta sem vede buď od Sněžných jam nebo z Labské louky okolo pramenu Labe.

Tajný tip Příběh apartmánu
2+kk
dispozice
1PP
podlaží
77 m²
Podlahová plocha
18 m²
Terasa
SKIALP
budova

Apartmán Violík

Popis

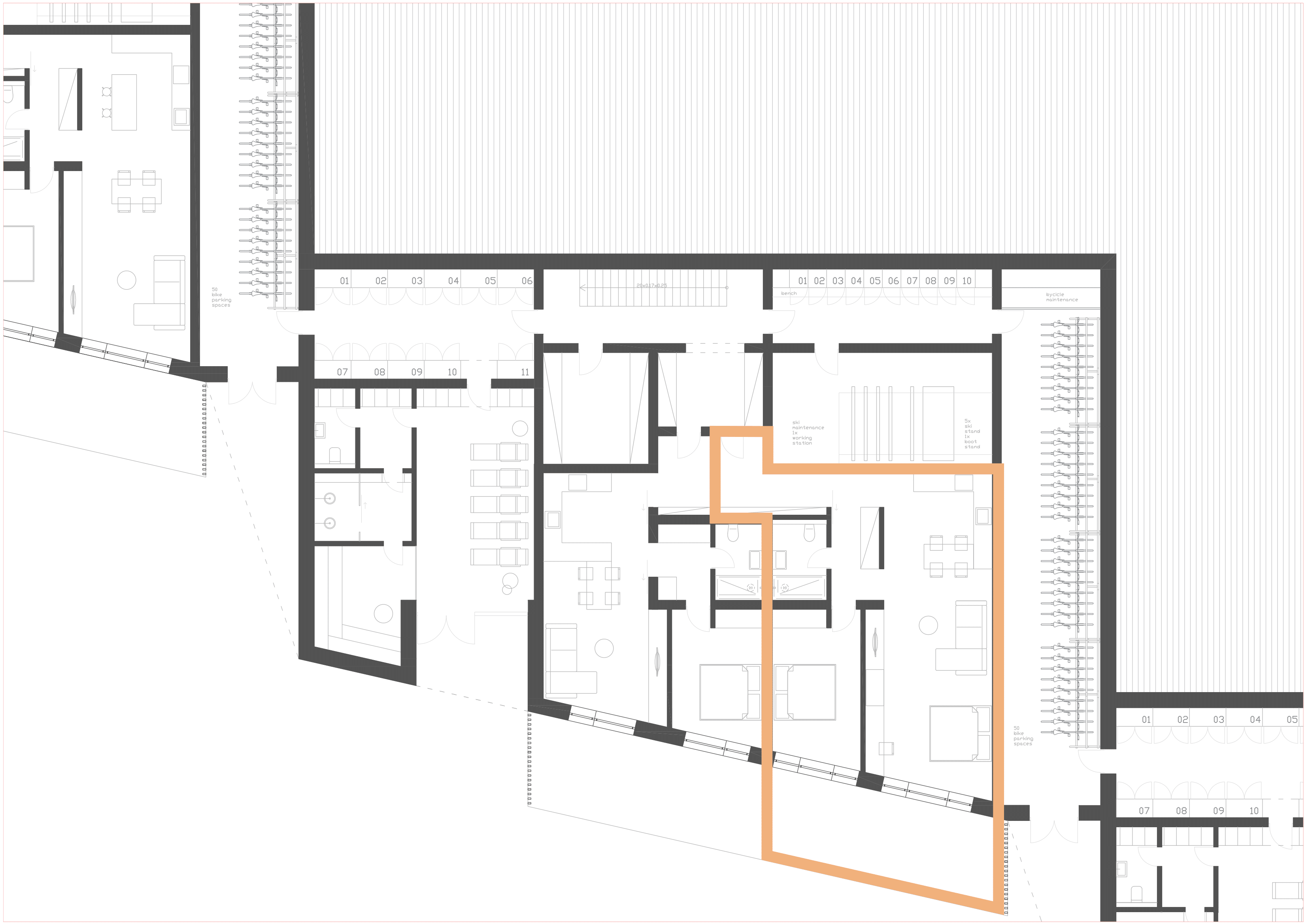
Jednoložnicový apartmán s podlahovou plochou 76,9 m2. Díky jižní orientaci hlavních obytných prostorů a moderní prosklené fasádě je zajištěn dostatek slunečních paprsků po celý den. Interiér bytu poskytuje dostatek vestavěných úložných prostor a ke každému apartmánu náleží také rezervované prostory na uložení lyží či kol, přístup do společného wellness s finskou saunou a na rozlehlou zahradu resortu s odpočinovými zónami.

Alpine Nordic Skialp Úroveň potoka Úroveň silnice
Standardy
Standardem každého apartmánu je komplexní zpracování interiéru do posledního detailu. Využity jsou prvky nejvyšší kvality s důrazem na funkčnost a design. Výběr materiálů zohledňuje duši lokality a signifikantní přírodní elementy, především dřevo. U důležitých prvků vybavení je vždy možné zvolit prémiovou variantu.
Více o standardech
2+kk | Violík | Budova Skialp
1.01 Obývací pokoj + kuchyň 46,6
1.02 Hlavní ložnice 15,1
1.03 Koupelna 4,1
1.04 Chodby 7,5
Užitná plocha 73,3
Vnitřní konstrukce a ostatní plocha 3,6
Podlahová plocha 76,9
1.05 Terasa 18,0
DOKONČENÍ VE STANDARDU
DOSTATEK ÚLOŽNÝCH PROSTOR
FITNESS, WELLNESS
RELAXAČNÍ ZAHRADA
ULOŽENÍ LYŽÍ A KOL
PARKOVACÍ STÁNÍ

Apartmán Violík

Lokalita

Rokytnice nad Jizerou je horské město s kompletním servisem a patří mezi nejlepší lyžařská střediska v Česku. Místo je navíc nekorunovaným králem českého skialpinismu a na své si přijdou i milovníci hřebenových túr a ti, kdo dávají přednost upraveným běžeckým stopám.

Název apartmánového domu SKIALP oslavuje Rokytnici nad Jizerou jako mekku českého skialpinismu. Zdejší dominanty jakými jsou Lysá hora, vrchol Kotel, ale i další místa nabízí mnoho hezkých výletů – od těch pro skialpové začátečníky, jež vedou po sjezdovce, až po náročnější túry po hřebenech Krkonoš. Jednotlivé apartmány v budově Skialp jsou pojmenovány podle zajímavých míst, které je možné navštívit při skialpových túrách v okolí.

Alpine Nordic Skialp
Domluvte si s námi schůzku, rádi vám projekt představíme.
Developer
Arbol Rokytnice s.r.o.
Paprsková 1535/2, Krč, 140 00 Praha 4
IČ: 09350748
k nahlédnutí Justice.cz
Získáno stavební povolení - 1Q 2023
Stavba byla zahájena v Q4 2024 pouze prozatímní předpoklad developera